









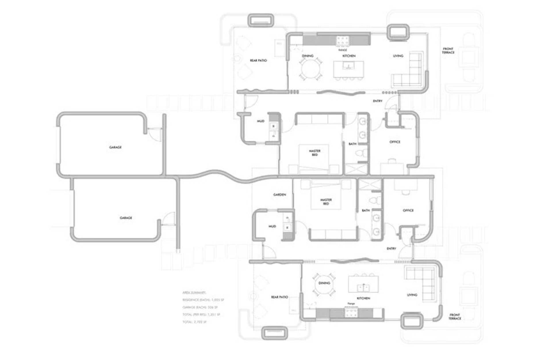
Cleora Duplex is a thoughtfully designed residential project that blends modern architecture with comfortable living. This duplex features two well-planned homes with open layouts, generous natural light, and clean, contemporary finishes.
Each residence is designed to maximize space and functionality, offering a private, home-like feel within a modern urban setting. With its balanced design and attention to detail, Cleora Duplex delivers a refined living experience focused on simplicity, comfort, and everyday ease.
Cleora Duplex
WHAT
Multi-family
WHERE
Rosamond CA
